Nikolas Reissis, Civil EngineerNikolas Reissis, Civil Engineer
Nikolas Reissis, Civil EngineerNikolas Reissis, Civil Engineer

Χτίστε στην Κάλυμνο με την Υποστήριξή μας

Το χτίσιμο στην Κάλυμνο μπορεί να γίνει είτε εφιάλτης είτε χαρούμενη δημιουργία. Με την υποστήριξή μας θα φροντίσουμε να το απολαύσετε.

Γιατί να χτίσετε στην Κάλυμνο μαζί μας;

  • Έχετε ένα όραμα για το κτήριο σας στην Κάλυμνο. Προσαρμόζουμε το όραμά σας ώστε να ανταποκρίνεται στους οικοδομικούς κανονισμούς της Καλύμνου. Διασφαλίζοντας μια νόμιμη, όμορφη, λειτουργική, νθεκτική και οικονομική κατασκευή.
  • Σχεδιάζουμε σε τρείς διαστάσεις (3D) ώστε όλοι να κατανοούν το έργο. Ιδιοκτήτες, μηχανικοί, συνεργάτες, εργολάβοι, αρχές, υπηρεσίες έγκρισης κ.λπ.
  • Μόλις οριστικοποιηθούν τα σχέδια, παίρνουμε τις εγκρίσεις και εκδίδουμε την οικοδομική άδεια.
  • Στη συνέχεια θα σταθούμε δίπλα σας για να το κατασκευάσουμε. Είτε επιλέξετε να διαχειριστείτε μόνοι σας το έργο είτε να μας αναθέσετε τη διαχείριση του.

Από το όραμα στην πραγματικότητα – Με Διαφάνεια, Προσαρμοσμένα και Αξιόπιστα

  • Τρισδιάστατες απεικονίσεις για προεπισκόπηση του κτιρίου σας.
  • Αντισεισμικές κατασκευές που πληρούν τα πρότυπα της ΕΕ
  • Παρακολούθηση προόδου σε πραγματικό χρόνο
  • Υπολογιστής Κόστους Κατασκευής στην Κάλυμνο

3D μοντέλο εδάφους

Το πρώτο μας βήμα είναι να δημιουργήσουμε ένα τρισδιάστατο μοντέλο εδάφους του οικοπέδου σας. Αυτό είναι απαραίτητο για:

  • Προσαρμογή του κτιρίου στο έδαφος.
  • Ελαχιστοποίηση των περιβαλλοντικών επιπτώσεων.
  • Συμμόρφωση με τους οικοδομικούς κανονισμούς.
  • Εξασφάλιση ασφαλών επιπέδων θεμελίωσης.
  • Μείωση περιττών δαπανών.
  • Εξάλειψη παράνομων κατασκευών.
  • Παραγωγή απεριόριστων όψεων και τομών.
  • Διευκόλυνση της οπτικοποίησης της τελικής κατασκευής πριν από την κατασκευή.

Αυτό είναι ένα 3D μοντέλο εδάφους

A 3D terrain model is essential to design a building on Kalymnos Island. Since flat land is very rare - Ένα τρισδιάστατο μοντέλο εδάφους είναι απαραίτητο για το σχεδιασμό ενός κτιρίου στην Κάλυμνο. Δεδομένου ότι η επίπεδη γη είναι πολύ σπάνια
A 3D terrain model is essential to design a building on Kalymnos Island. Since flat land is very rare - Ένα τρισδιάστατο μοντέλο εδάφους είναι απαραίτητο για το σχεδιασμό ενός κτιρίου στην Κάλυμνο. Δεδομένου ότι η επίπεδη γη είναι πολύ σπάνια

3D μοντέλα Αρχιτεκτονικών και Φέροντα Οργανισμού

Πεζοπορίες και πτήσεις: Δείτε το κτίριό σας από οποιαδήποτε γωνία, μέσα ή έξω, πριν ξεκινήσει η κατασκευή.
Φέροντας Οργανισμός: Είναι ο σκελετός του κτιρίου. Στηρίζει το κτίριο και μεταφέρει βάρη και σεισμικά φορτία στο έδαφος. Κατασκευασμένος από οπλισμένο σκυρόδεμα, πέτρα, τούβλα, χάλυβα ή ξύλο.

Αυτός είναι ο σκελετός ενός σπιτιού

Load-bearing structure of a house on Kalymnos Island - Φέρων Οργανισμός ενός σπιτιού στην Κάλυμνο
Load-bearing structure of a house on Kalymnos Island - Φέρων Οργανισμός ενός σπιτιού στην Κάλυμνο

Παράδειγμα προόδου ενός έργου από την φωτογραφία του οικοπέδου μέχρι τα σχέδια.

Φωτογραφία των οικοπέδων στα Βλυχάδια
Φωτογραφία των οικοπέδων στα Βλυχάδια
Photorealistic image of the 3d-model of the terrain with the photo of the plot as a background
Φωτορεαλιστική εικόνα του 3d-μοντέλου του εδάφους με τη φωτογραφία του οικοπέδου ως φόντο
Photorealistic image of Architectural 3D model with the plot photo as background - Φωτορεαλιστική εικόνα Αρχιτεκτονικού τρισδιάστατου μοντέλου με την φωτογραφία οικόπεδου ως φόντο
Photorealistic image of Architectural 3D model with the plot photo as background - Φωτορεαλιστική εικόνα Αρχιτεκτονικού τρισδιάστατου μοντέλου με την φωτογραφία οικόπεδου ως φόντο
Accurate 2D drawings from 3D models - Ακριβή 2D σχέδια από 3D μοντέλα
Accurate 2D drawings from 3D models - Ακριβή 2D σχέδια από 3D μοντέλα
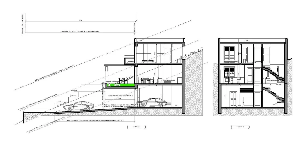
Accurate 2D Sections from 3D Models - Ακριβείς 2D Τομές από 3D μοντέλα
Accurate 2D Sections from 3D Models - Ακριβείς 2D Τομές από 3D μοντέλα
Accurate 2D Views from 3D Models - Ακριβείς 2D Οψεις από 3D μοντέλα
Accurate 2D Views from 3D Models - Ακριβείς 2D Οψεις από 3D μοντέλα

Recent Comments

Latest Posts